Home
About
Services
Portfolio
Blogs
Contact
Home
Portfolio
About Us
Our Blogs
Our Services
Contact Us
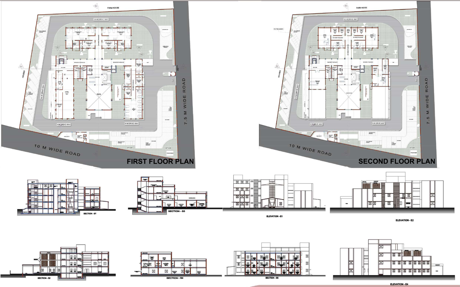
Hospital
Description
Project – Multi Specialty Hospital
Area - 1200 m2
Year -
Location -
Client - Concept